- Beds: 4
- Baths: 3
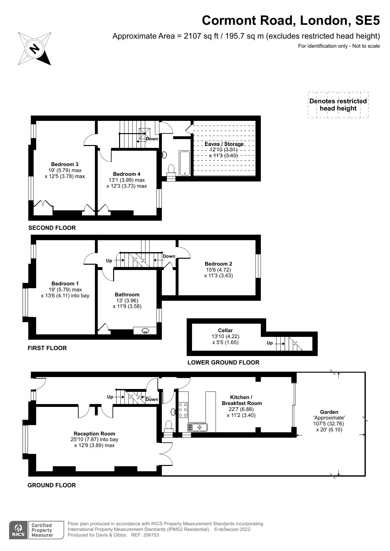
Description
A beautiful Victorian four double bedroom terraced house, with an impressive 2100 sq ft of space and offering an abundance of character in the sought after Myatts Field area of Camberwell.
The property is finished to an excellent standard throughout, tasteful decor and retains many characteristics including shutters, wooden floors and low level cast iron radiators. The rooms are generously proportioned with natural light throughout. The house is delivered over three full original floors.
The ground floor comprises the main double reception at over 25 feet and with two feature marble fireplaces, wood floors, built in book cases, bay window and doors opening to the rear garden. The rear Kitchen/Dining room is over 22 feet. This has wood floors, fully fitted kitchen with integrated appliances and large patio doors that open onto the 100 feet secluded and leafy garden. This floor also has WC and access to the cellar, providing more storage space.
The first floor has two large bedrooms and family bathroom. The master bedroom with three sash windows overlooking the park. This bright and airy room has wooden floors, marble fireplace and is in keeping with the character and style of the property. The oversized bathroom has wood floors, cast iron fireplace, and towel radiator and built in cupboard. The large sash window overlooks the rear garden. The rear bedroom has wooden floors, sash window and a lovely view of the garden.
The second floor has two further bedrooms and bathroom. The large impressive bedroom at the front of the property mirrors the master and also has wood floors, fireplace and two built in cupboards. The rear double bedroom has wood floors, built in cupboard and fireplace. Another bathroom with large shower cubicle and access to large eaves storage.
The property is located opposite the entrance to the picturesque Victorian Myatts Field Park. This hidden London gem is hugely popular with the local community. The area is enjoyed by families looking for a quiet life but close to everything that Camberwell and Central London has to offer. The abundance of transport links, restaurants, cafes and bars make this a highly desirable location. The property is offered chain free. Please contact now for a viewing.
Features
- Victorian Terrace
- 100ft Rear Garden
- Wooden Flooring
- Original Features
- Four Double Bedrooms
- Feature Fireplaces
- Double Reception Room
- Three Original Floors
Floor Plan






























