- Beds: 2
- Baths: 1
Description
Nestled within the highly sought-after Ingress Park development, this beautifully presented two-bedroom end-of-terrace home combines modern comfort with elegant design in a thriving riverside community. Thoughtfully redecorated throughout, the property is immaculately maintained and boasts a range of upgrades tailored to contemporary living.
The ground floor offers a bright and spacious reception room, ideal for entertaining or relaxing in comfort. The kitchen/dining room is fitted with modern units and appliances, providing a sociable and functional hub of the home. A convenient downstairs WC and hallway with stairs leading to the upper floor complete the layout. Upstairs, the primary bedroom features built-in storage, while the second bedroom is spacious and located next to a well-appointed family bathroom.
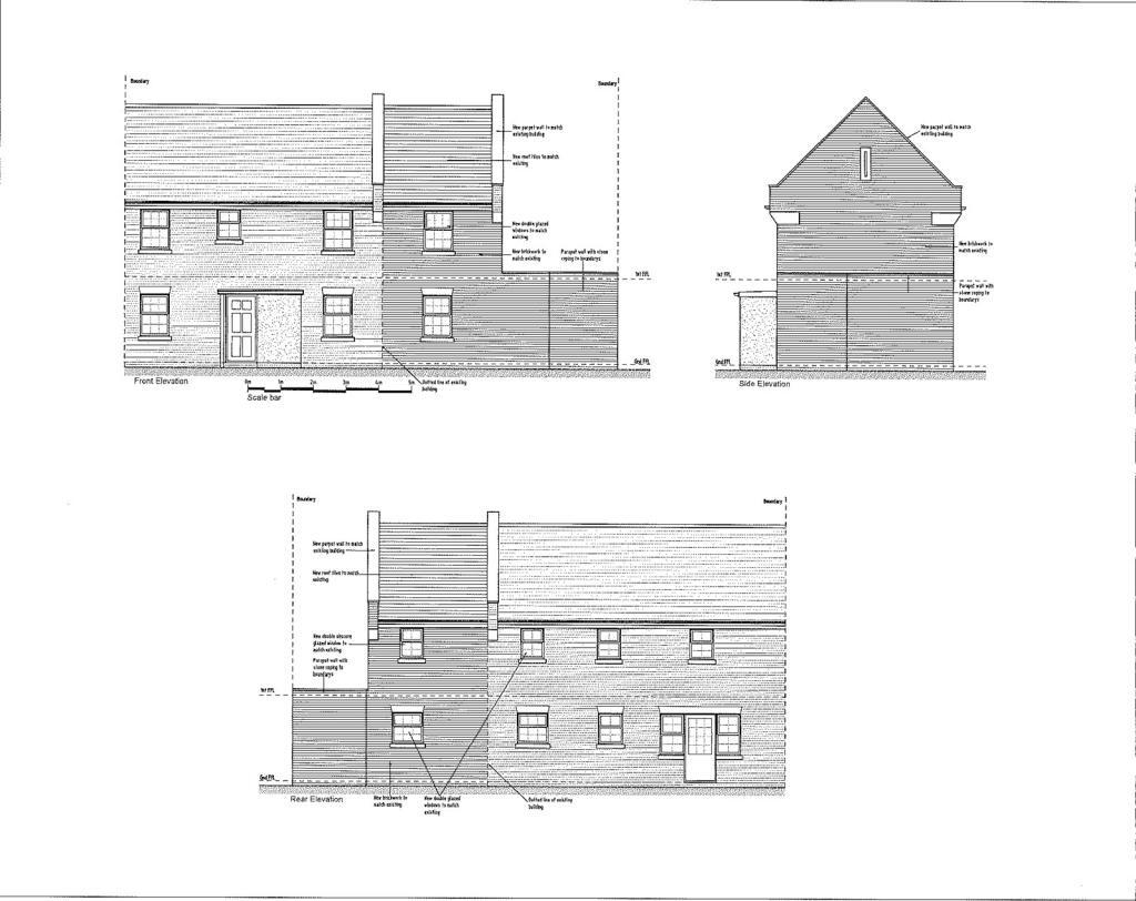
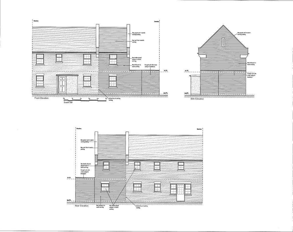
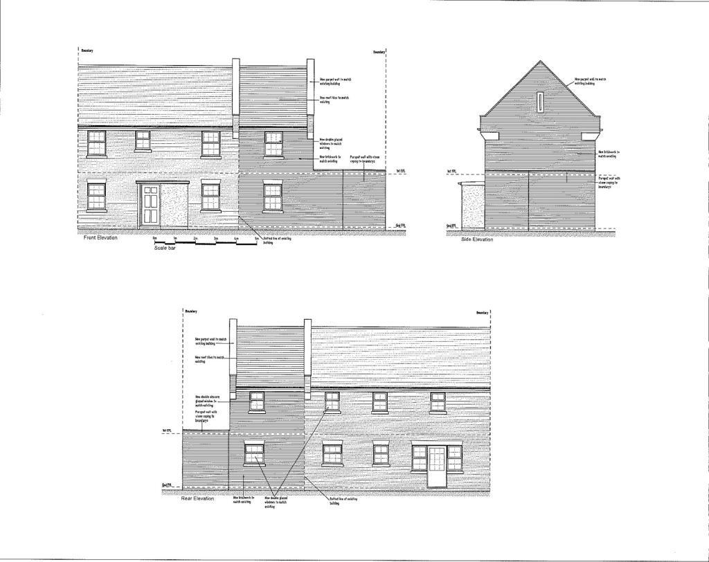
Step outside into a generous private rear garden extending to approximately 42'8 x 19'8—perfect for outdoor dining, play, or simply unwinding. A separate barn-style bar adds a fantastic place to entertain. Whether its family BBQs or cheering your favourite sports team this flexible space is a real added bonus that could just as easily be used for a home office, gym, studio, or additional storage. The property benefits from allocated parking and visitors permits upon request. Planning permission has also been approved for a double extension.
Prime Location for Commuters and Families Greenhithe Station is within walking distance, providing direct rail services to London in as little as 50 minutes. The nearby Abbey Wood station connects to the Elizabeth Line in just 18 minutes, and Ebbsfleet International—only a 10-minute drive—offers high-speed trains to King's Cross St Pancras in just 22 minutes. Motorists enjoy excellent access to the A2/M25 and a discounted Dartford Crossing toll for residents.
Ingress Park is renowned for its peaceful, well-maintained surroundings, with scenic walking trails, woodlands, and lush open spaces right on your doorstep. Just a short drive away, There is also a Fast Track Bus Service to the local train stations and Bluewater Shopping Centre, which offers a wide range of shops, restaurants, cafes, a cinema, and leisure facilities—catering to every need and occasion.
Features
- Chain Free
- Two Bedroom House
- Planning Approved For Side Extension
- EPC - C - 76
- Council Tax - Dartford - Band D
- Beautiful Garden With Barn Style Outbuilding
- Sought-After Development
- Private Garden and Patio
Floor Plan


















































